


160 000 ₽/м²
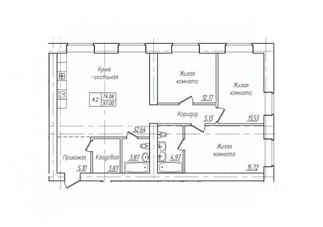
Продается 4-комн. кв-ра площадью 116.06 кв.м на 10 этаже 10 этажного кирпичного дома в Академия от ГК "Ваши окна". Откройте для себя новый уровень жизни в самом сердце Чебоксар — жилой комплекс "Академия"! Наш проект — это воплощение элегантности и комфорта, гармонично вписанный в исторический облик столицы Чувашии. Мы создали не просто дом, а настоящее произведение архитектурного искусства, которое продолжает лучшие традиции городской застройки. Каждая деталь комплекса продумана для вашего комфорта. Прочные кирпичные стены обеспечивают экологичность и долговечность жилья, а современные планировки создают ощущение простора и свободы. Панорамные окна Melke не только наполняют квартиры естественным светом, но и открывают захватывающие виды на город. Энергосберегающие стеклопакеты и высокий класс энергоэффективности дома A+ обеспечивают безупречный микроклимат в квартире круглый год, одновременно сокращая расходы на оплату отопления и электроэнергии. Мы позаботились о каждой детали вашего будущего дома. Просторные квартиры с продуманными планировками включают мастер-спальни с отдельными ванными комнатами. Дизайнерские холлы, созданные профессиональными дизайнерами, будут радовать вас каждый день. Подземный паркинг решает вопрос с парковкой, а современные системы безопасности обеспечивают ваш покой. Жизнь в "Академии" — это не просто проживание в отличном доме. Это доступ к развитой инфраструктуре, благоустроенной территории для отдыха и прогулок, современным технологиям комфорта. Здесь каждый день наполнен уютом и безопасностью. Станьте частью интеллигентного сообщества! Выберите жизнь, достойную вас — жизнь в "Академии"!

















































































