


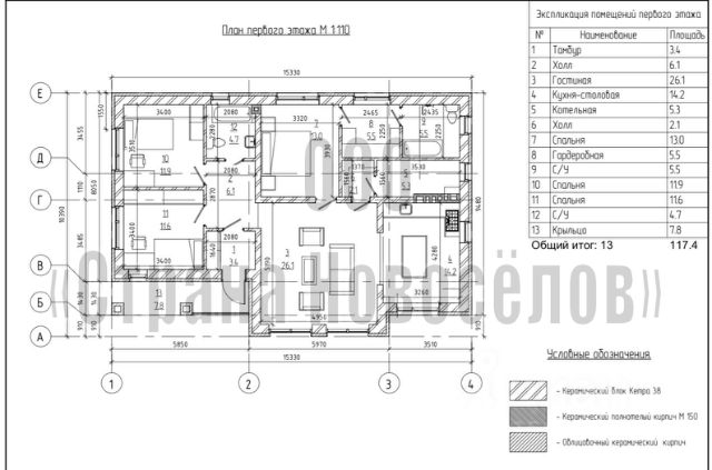
Продаётся кирпичный коттедж площадью 298,9 м² с двумя этажами и полноценным цокольный этажом 90 м2, участок ИЖС 12 соток. Высота потолков 3,20. построенный в 2008 году. Дом сухой, стены отштукатурены, электрика по всему дому разведена, что позволяет воплотить любые дизайнерские идеи. На первом этаже расположены две просторные комнаты и кухня, а второй этаж включает 3 спальни и большой балкон лоджия. Цокольный этаж и имеет 2 просторные комнаты и большой гараж, способный поместить газель либо 2 легковых автомобиля. На участке есть возможность подключения газа по границе, водоснабжение и канализация и электричества, коммуникации проходят вдоль участка. Территория вокруг дома окружена живописной природой, что создаёт уютную атмосферу. В шаговой доступности находится школа, обеспечивая удобство для семей с детьми. Асфальтированная дорога обеспечивает удобный подъезд к дому, а наличие остановки общественного транспорта делает его ещё более доступным. Земельный участок относится к категории ИЖС, что открывает возможности для дальнейшего строительства или благоустройства территории. Продается дом в Алатыре, 2 этаж..








































































