Мы используем куки-файлы. Соглашение об использовании
Только на Циан
Общая площадь100 м²
Участок10 сот.
Материал домаКирпичный
Этажей в доме1
Год постройки2025
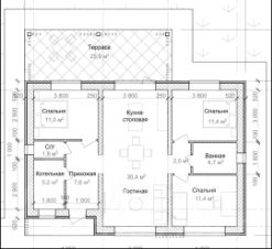
Продаётся кирпичный дом площадью 100 м² с центральным водоснабжением и канализацией. Год постройки — 2025. Одноэтажное здание требует ремонта, что позволяет воплотить собственные дизайнерские идеи. На территории предусмотрена терраса или веранда для отдыха на свежем воздухе. Дом расположен в районе с развитой инфраструктурой: рядом есть школа и остановка общественного транспорта. Подключен газ по границе участка, что облегчает подключение коммуникаций. Возможна покупка в ипотеку. Земельный участок категории ИЖС.
Позвоните автору
Вам ответят на все вопросы

О доме

Площадь

100 м²

Материал дома

Кирпичный

Состояние дома

Нужен ремонт

Количество этажей

1

Количество спален

3

Год постройки

2025

Об участке

Площадь

10 сот.

Категория земель

Земли населённых пунктов

Статус участка

Индивидуальное жилищное строительство

Коммуникации и удобства

Санузел

1 в доме

Канализация

Центральная

Водоснабжение

Центральное

Отопление

Центральное газовое

Электричество

Есть

Газ

Магистральный по границе

Дополнительно

Терраса

Спросите умного помощника
Получите экспертное мнение о жилье

Расположение

Подпишитесь на объявления в этой локации
Мы сообщим, как только поблизости появится что‑нибудь новенькое
Ипотечный калькулятор
  • Базовая
  • Семейная
  • ИТ-ипотека
  • 20%
  • 30%
  • 40%
  • 50%
лет
  • 10 лет
  • 20 лет
  • 30 лет
Загружаем предложения от застройщика и банков
СобственникID 134748068
    Хотите продать недвижимость?Разместите объявление на ЦианРазместить
    9 050 000 ₽
    Цена за метр
    90 500 ₽/м²
    Условия сделки
    свободная продажа
    Ипотека
    возможна
    СобственникID 134748068