Мы используем куки-файлы. Соглашение об использовании

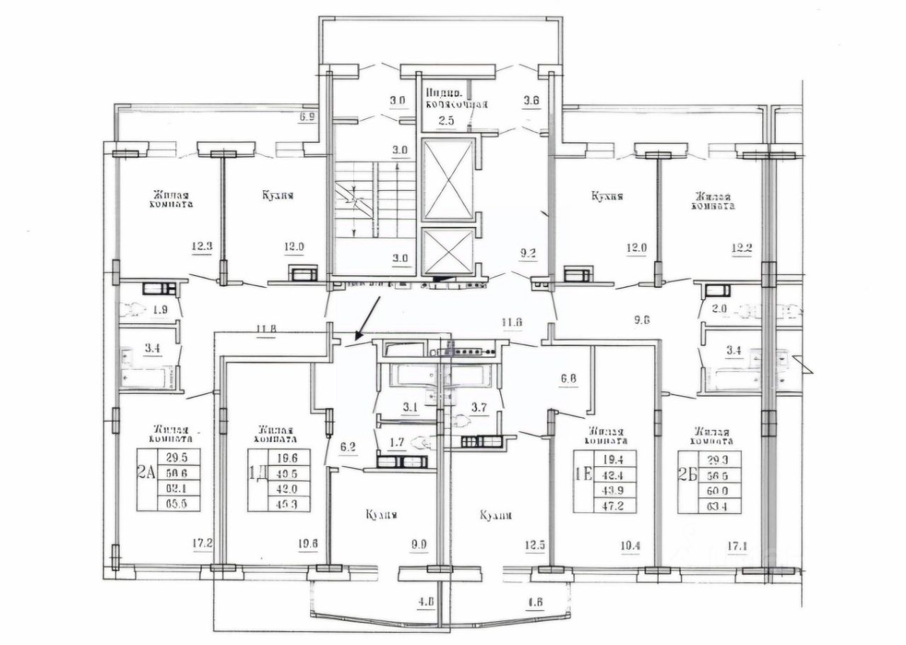
Продается 1-комн. квартира, 45,6 м²

Общая площадь45,6 м²
Жилая площадь19,6 м²
Площадь кухни9,9 м²
Этаж9 из 12
Год постройки2025
Если вы мечтаете о жизни в монолитно — кирпичном доме, расположенном в спальном районе города с развитой инфраструктурой, то наша квартира — это то, что вам нужно! Мы предлагаем вам приобрести однокомнатную квартиру, расположенную в ЖК Звёздный дуэт по адресу: г. Чебоксары, б-р Солнечный, д. 22, 9 из 12 этаж. Дом сдан в декабре 2025 года. Автономное отопление. Закрытая территория со шлагбаумом. Общая площадь квартиры с лоджией составляет 45,6 кв. м. Площадь кухни — 9,9 кв. м, жилая комната — 19,6 кв. м. Санузел раздельный. Окна выходят на улицу, в сторону Ленты. Квартира продаётся в черновой отделке, что даёт возможность новым владельцам сделать ремонт по своему вкусу и потребностям. Дом расположен в тихом районе города с развитой инфраструктурой. В районе построены новый детский сад и школа, в шаговой доступности магазины и остановки общественного транспорта. Квартира не имеет обременений. Один взрослый собственник. Покажем квартиру в удобное для вас время. Звоните!
Позвоните автору
Вам ответят на все вопросы

О квартире

Тип жилья

Вторичка

Общая площадь

45,6 м²

Жилая площадь

19,6 м²

Площадь кухни

9,9 м²

Санузел

1 раздельный

Балкон/лоджия

1 лоджия

Вид из окон

На улицу

Ремонт

Без ремонта

О доме

Количество лифтов

1 грузовой

Спросите умного помощника
Получите экспертное мнение о жилье

Расположение

Ипотечный калькулятор
  • Базовая
  • Семейная
  • ИТ-ипотека
  • 20%
  • 30%
  • 40%
  • 50%
лет
  • 10 лет
  • 20 лет
  • 30 лет
Загружаем предложения от застройщика и банков
Помощь риелтора
Проверенный риелтор поможет купить или продать квартиру
РиелторЯрмарка Жилья
Документы проверены
5 450 000 ₽
Цена за метр
119 518 ₽/м²
Условия сделки
свободная продажа
Ипотека
возможна
Агентство недвижимости
Документы проверены
На Циан
10 лет
Объектов в работе
25