Мы используем куки-файлы. Соглашение об использовании

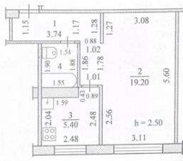
Продается 1-комн. квартира, 31,9 м²

Общая площадь31,9 м²
Жилая площадь19,2 м²
Площадь кухни5,4 м²
Этаж-1 из 5
Год постройки1968
Продаётся уютная однокомнатная квартира площадью 31.9 квадратных метров на первом этаже пятиэтажного панельного дома, расположенного по адресу: город Чебоксары, микрорайон Северо-Западный, улица Гузовского, дом 4. Просторный зал занимает 19.2 квадратных метров, а кухня 5.4 квадратных метров. По всей квартире натяжные потолки с точечными светильниками. На полу во всех комнатах качественный ламинат. Санузел совмещённый в кафеле, выполнен свежий косметический ремонт, который позволит новым владельцам сразу же въехать без дополнительных вложений. 1 взрослый собственник! Во дворе расположена детская площадка для малышей. Двор тихий и спокойный. Безопасность жильцов обеспечивает стандартный домофон. Для удобства жителей рядом расположены продуктовые магазины ("Пятёрочка", "Акконд", "Йола-маркет"), семейное кафе-ресторан "Бонджорно Bambini" и студия красоты. Также поблизости находятся школа 27, детские сады, ФОК и торговый центр, обеспечивающие комфортную жизнь и развитие детей. Через дорогу Покровско-Татианинский собор, а также роща Гузовского. Этот вариант идеально подойдёт тем, кто ценит уединённость и спокойствие своего жилища при наличии всей необходимой инфраструктуры под рукой и транспортную доступность. Приглашаем ознакомиться с квартирой и убедиться лично в её преимуществах. Арт. 134375939
Позвоните автору
Вам ответят на все вопросы

О квартире

Тип жилья

Вторичка

Общая площадь

31,9 м²

Жилая площадь

19,2 м²

Площадь кухни

5,4 м²

Санузел

1 совмещенный

Вид из окон

Во двор

Ремонт

Косметический

О доме

Год постройки

1968

Тип дома

Панельный

Тип перекрытий

Железобетонные

Подъезды

4

Отопление

Центральное

Аварийность

Нет

Газоснабжение

Центральное

Спросите умного помощника
Получите экспертное мнение о жилье

Расположение

Ипотечный калькулятор
  • Базовая
  • Семейная
  • ИТ-ипотека
  • 20%
  • 30%
  • 40%
  • 50%
лет
  • 10 лет
  • 20 лет
  • 30 лет
Загружаем предложения от застройщика и банков
Помощь риелтора
Проверенный риелтор поможет купить или продать квартиру
РиелторЗодчий
Документы проверены
4 400 000 ₽
Цена за метр
137 931 ₽/м²
Условия сделки
свободная продажа
Ипотека
возможна
Агентство недвижимости
Документы проверены
На Циан
6 лет
Объектов в работе
665