Мы используем куки-файлы. Соглашение об использовании
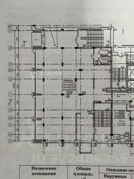
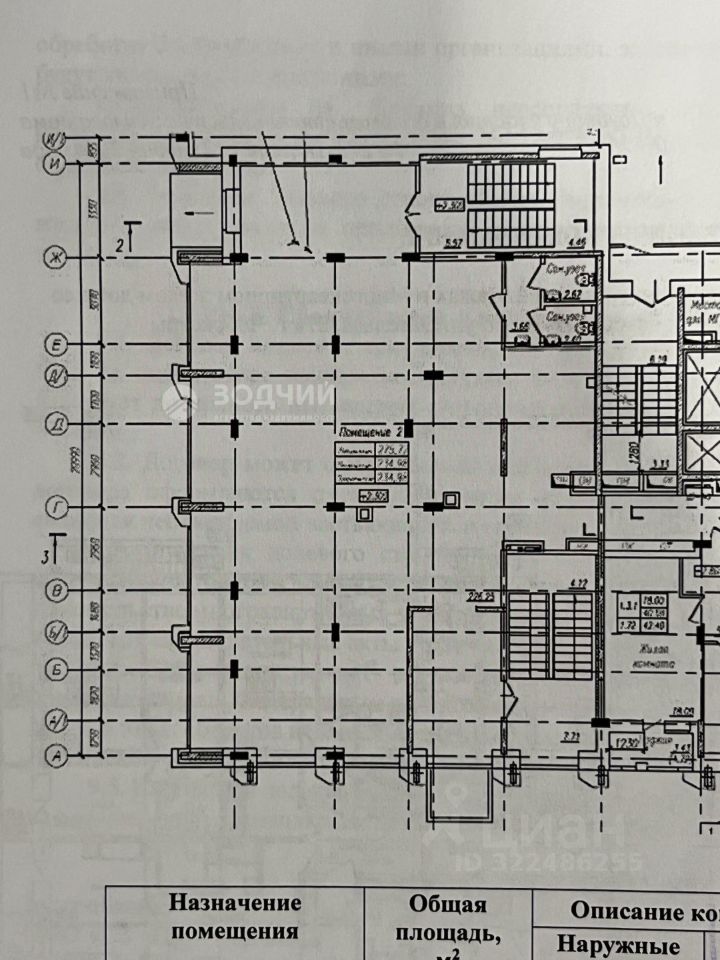
Площадь275,72 м²
Этаж2 из 2
В поисках готового бизнеса или коммерческого помещения в центре города? Вашему вниманию представляю нежилое помещение по улице Николаева, дом 27а. Этаж второй, черновая отделка, отлично подходит под готовый бизнес. Очень удобное расположение офиса, хорошие подъездные пути. 10 минут до остановок общественного транспорта. Реальному покупателю реальный торг! Юридическое сопровождение на всех этапах сделки. Спешите воспользоваться выгодным предложением! Все дополнительные вопросы — по телефону! Звоните! Показ по договорённости. Арт. 118232762
lock

Войдите или зарегистрируйтесь
для просмотра информации

Просматривайте условия сделки и всю информацию об объекте
Сохраняйте фильтры в поиске и не вводите заново
Доступ к избранному с любого устройства
Неограниченное добавление в избранное
Позвоните автору
Вам ответят на все вопросы
Остались вопросы по объявлению?
Позвоните владельцу объявления и уточните необходимую информацию.
  • Инфраструктура
  • Похожие рядом
  • Тип зданияЖилой дом
  • Общая площадь275,72 м²
Центральное отопление
Помощь надёжных риелторов
Риелтор партнёр Циан поможет купить или продать любую недвижимость
РиелторЗодчий
5,0・2
Суперагент
45 300 000 ₽
619 467 $
531 797
Цена за метр
164 298 ₽
Налог
УСН
Агентство недвижимости
На Циан
6 лет
Объектов в работе
706
Риелтор
Суперагент
5,0・2